
185.000 EUR
Acest duplex are două unități independente. Fiecare are intrare separată și poate fi achiziționată individual.
Parter: living 20 mp, bucătărie 12 mp, birou 8 mp, baie 4,5 mp, cămară. Etaj: 2 dormitoare (15 mp fiecare), dressing 8 mp, baie 7 mp. Terasă acoperită 23 mp.
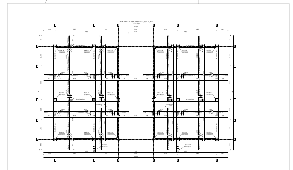
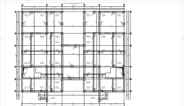
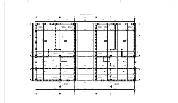
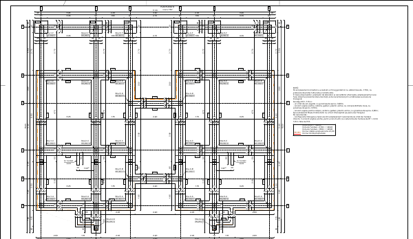
Cotele și dimensiunile de mai jos provin din memoriul de rezistență (PTH_Popa.docx) și din secțiunea A.05 a DTAC-ului autorizat (CU nr. 189/30.09.2025, Primăria Miroslava). Sunt măsurabile pe planșe și verificabile la documentația depusă.
Pantă 15° (~26,79%)
~2,65 m între plăci BA
~2,90 m între plăci BA
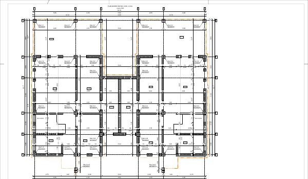
Rețea grinzi de fundare
Cotele sunt exprimate în metri de la cota finită a pardoselii parterului (±0,00).
streașină +5,80 · coamă +6,95 m
+2,90 m → +5,55 m
±0,00 m → +2,90 m
până la –2,10 m
Extras din memoriul tehnic și piesele desenate ale proiectului autorizat. Toate valorile sunt verificate în documentația depusă la Primăria Miroslava.
Extras din antemăsurătorile proiectului tehnic, cu pierderi de execuție incluse
Valorile provin din devizele estimative (antemăsurători) întocmite de proiectant pe baza extraselor de armare și a planurilor de cofraj. Cifrele finale puse în operă pot varia în limita toleranțelor normate.
Str. Roșiori nr. 10, Horpaz, comuna Miroslava, județul Iași. Teren intravilan extins, 1.094 mp (CF 101632).
Proiect în faza D.T.A.C. (Documentație Tehnică pentru Autorizație de Construire), depusă la Primăria Miroslava în baza Certificatului de Urbanism nr. 189 din 30.09.2025, cu verificare tehnică atestată (referat nr. 4833/2025) pentru cerința Af. Proiect tehnic finalizat în ianuarie 2026.
Descarcă principalele planșe din proiectul tehnic al duplexului. Plănuiești să arăți proiectul unui inginer, verificator sau unui executant partener? Toate informațiile sunt aici.
Rețeaua de grinzi de fundare, tălpi 70×40 cm, cote de fundare –2,10 m.
Detalii cofraj planșeu BA 15 cm la cota +2,80 m, inclusiv poziționare grinzi.
Distribuția zidăriei de cărămidă 25 cm la parter, la cota –0,10 m.
Planul de cofraj pentru planșeul peste etaj, la cota +5,70 m.
Zidăria de 25 cm la etaj, cota +2,80 m, cu buiandrugi și compartimentări.
Structura de lemn a acoperișului — căpriori, pane, cleștai, cosoroabe.
Piese scrise disponibile la cerere: memoriu de rezistență, breviar de calcul, caiete de sarcini (fundații, betoane, zidărie, învelitori, tencuieli, tâmplărie), program de urmărire în timp a construcției, extrase de armare cu forme fasonate (stâlpi, grinzi, placă, scară) și antemăsurători detaliate.
Proiectul tehnic complet se pune la dispoziție clienților contractați, împreună cu detaliile de execuție și procesele-verbale de faze determinante.
Duplex nou în Horpaz, comuna Miroslava, Iași. Două unități independente (A și B), fiecare cu 112 mp suprafață utilă distribuită pe două niveluri, plus terasă acoperită de 23 mp. Fiecare unitate include 2 dormitoare la etaj, dressing, 2 băi, birou la parter, bucătărie și living. Structură beton armat cu stâlpi 30×30, planșee BA 15 cm și șarpantă de lemn, conform normativului P100-1/2013.
Dormitoare
2
Băi
2
Suprafață utilă
112 m²
An construcție
2026
Locuri parcare
2
Clasă energetică
A
Etaje
2
Teren
250 m²
beton armat + șarpantă lemn
185.000 EUR